中华人民共和国建筑工业行业标准
JG/T 140-2005
代替JG/T 3018-1994?JG/T 140-2001
未增塑聚氯乙烯(PVC-U)塑料窗
Unplasticed Polyvinyl Chloride (PVC-U) Windows
未增塑聚氯乙烯(PVC-U)塑料窗
前 言
本标准代替JG/T 3018—1994《PVC塑料窗》、JG/T l40—2001《PVC塑料悬转窗》。
本标准与JG/T 3018--1994《PVC塑料窗》、JG/T l40--2001《PVC塑料悬转窗》的主要差异如下:
——本标准删除了JG/T 3018--1994中窗洞口的规格及其代号表和窗框厚度基本尺寸系列表。
——本标准增加了对主型材最小壁厚的规定。
-——本标准增加了悬转窗中平开下悬窗、上悬窗、中悬窗和下悬窗的有关内容。
——本标准修改了力学性能中焊接角破坏力的规定并增加了计算方法。
——本标准的建筑物理性能依据GB/T 7106、GB/T 7107、GB/T 7108、GB/T 8484、GB/T 8485、GB/T ll976进行修改。在本标准的气密性能、保温性能、隔声性能删去了上述标准中的最低指标值。
——本标准的附录A和附录E为规范性附录,附录B、附录C和附录D为资料性附录。
本标准由建设部标准定额研究所提出。
本标准由建设部建筑制品与构配件产品标准化技术委员会归口。
本标准主要起草单位:中国建筑金属结构协会塑料门窗委员会、中国建筑科学研究院。
本标准参加起草单位:大连实德集团、维卡塑料(上海)有限公司、北新建塑有限公司、芜湖海螺型材科技股份有限公司、保定宝硕新型建筑材料有限公司、福建亚太建材有限公司、中山市中标塑料型材有限公司、上海开捷门窗有限公司、皇家建筑系统(上海)有限公司、山东大明塑料型材有限公司、淄博三钟塑料建材有限公司、香河贝德建筑装饰制品有限公司、武汉特凌节能门窗有限公司。
本标准主要起草人:闫雷光、王永菁、丛敬梅、黄家文、黄英升、陈祺、石清、王杨林、王志斌、王民、杨荣君、朱明、王关鑫、黄金永、刘绪政、付士雷、尹昌波。 .
本标准所代替标准的历次版本发布情况为:
——JG/T 3018--1994。
——JG/T l40一2001。
范 围
本标准规定了未增塑聚氯乙烯(PVC-U)塑料窗(以下简称塑料窗)的术语和定义、分类、规格和型号、材料、要求、试验方法、检验规则和标志、包装、运输、贮存。
本标准适用于由未增塑聚氯乙烯(PVC-U)型材制作的建筑用窗。不适用于本标准中未规定性能的其他窗。
规范性引用文件
下列文件中的条款通过本标准的引用而成为本标准的条款。凡是注日期的引用文件,其随后所有的修改单(不包括勘误的内容)或修订版均不适用于本标准,然而,鼓励根据本标准达成协议的各方研究是否可使用这些文件的最新版本。凡是不注日期的引用文件,其最新版本适用于本标准。
GB/T 5823 建筑门窗术语
GB/T 5824 建筑门窗洞口尺寸系列
GB/T 7106 建筑外窗抗风压性能分级及检测方法
GB/T 7107 建筑外窗气密性能分级及检测方法
GB/T 7108 建筑外窗水密性能分级及检测方法
GB/T 8484 建筑外窗保温性能分级及检测方法
GB/T 8485 建筑外窗空气声隔声性能分级及检测方法
GB/T 8814—2004 门、窗用未增塑聚氯乙烯(PVC-U)型材
GB/T 9286 色漆和清漆 清膜的划格试验
GB 11793.3—1989 PVC塑料窗力学性能、耐候性试验方法
GB/T 11976 建筑外窗采光性能分级及检测方法
GB/T 14436 工业产品保证文件 总则
JGJ 103 塑料门窗安装及验收规程
JGJ113 建筑玻璃应用技术规程
术语和定义
GB5823确立的术语以及下列定义适用于本标准。
3.1 未增塑聚氯乙烯(PVC-U)塑料窗 Unplasticized polyvinyl chloride(PVC-U) windows
由未增塑聚氯乙烯(PVC-U)型材并按规定要求使用增强型钢制作的窗。
3.2 通体着色型材 full colourful profile
向PVC干混料直接加入颜料共同混合后挤出的型材,其颜色不在GB/T 8814所适用的范围之内。
3.3 附框 auxiliary fram
安装窗前在墙体洞口预埋的过渡性结构件,窗通过其与墙体安装联接。
3.4 共挤 co-extrusion
两台或两台以上挤出机分别将不同材料挤入同一特制模具中成为一体型材的过程。主要是指PVC共混
料与回收PVC型材粉碎料的新旧料共挤,PVC共混料与其它着色高分子材料的双色共挤两种。
3.5 装配式结构 assembly structure
指框、扇、梃等主型材之间不经焊接,而采用专用联接件进行联接的结构。
分类、规格和型号
4.1 分类
开启形式与代号按表1规定。

4.2 规格和型号
4.2.1窗洞口尺寸系列宜符合GB/T 5824的规定。
4.2.2窗的构造尺寸应由以下原则确定:
a) 窗的建筑物理性能要求;型材断面结构尺寸;
b) 主要受力杆件的强度和挠度,开启扇自重、五金配件承载能力和五金配件与窗框、窗扇的联接强
度;
c) 洞口尺寸和墙体饰面层的厚度及窗框与洞口间隙、附框尺寸的要求,并应符合JGJ103的规定。
4.3 窗框厚度基本尺寸系列
窗框厚度基本尺寸按窗框型材无拼接组合时的最大厚度尺寸的实际值确定。
4.4 标记方法、示例
4.4.1标记方法
产品标记由名称代号、规格、性能代号组成。
4.4.2示例
示例1:平开塑料窗,窗框厚度系列为60㎜,规格型号为1518,抗风压性能为2.5kPa,气密性能为
1.5m3/(m?h)或表示为4.5 m3/(m2?h),水密性能为250Pa,保温性能为2.0W/(m2?K),隔声性能为
30dB,采光性能为0.40,带纱扇窗。
PSC60-1518-P32.5-q11.5(或q24.5)-△P250-K2.0-RW30-Tr0.40-A
示例2:平开塑料窗,窗框厚度为60㎜,规格型号为1518,保温性能2.0W/(m2?K),抗风压、气密
、水密、隔声、采光性能无指标要求和无纱扇时不填写。
PSC60-1518-K2.0
材 料
5.1 窗用型材分颜色在GB/T 8814—2004适用范围内的型材、通体着色型材、双色共挤型材、表面涂层型
材和覆膜型材。
5.2 颜色在GB/T 8814—2004适用范围内的型材应符合GB/T 8814—2004的规定
5.3未增塑聚氯乙烯(PVC-U)新旧料共挤型材、未增塑聚氯乙烯(PVC-U)与聚甲基丙烯酸甲酯 (PM-MA)
共挤型材、表面涂层型材和覆膜型材除应符合GB/T 8814--2004规定的要求外,还应符合附录A韵要求。
5.4通体着色型材不宜用于建筑外窗。
5.5平开窗主型材可视面最小实测壁厚不应小于2.5 mm,推拉窗主型材可视面最小实测壁厚不应小于2.
2 mm。
5.6窗用密封胶条参见附录B的要求。
5.7窗用其他材料及五金配件参见附录C,其中窗用密封毛条应采用经紫外线稳定性处理和硅化处理
的平板加片型。
5.8紧固件应采用机制自钻自攻螺钉。
5.9玻璃的选用应按JGJ ll3的规定。
要 求
6.1 外观质量
窗构件可视面应平滑,颜色基本均匀一致,无裂纹、气泡,不得有严重影响外观的擦、划伤等缺陷
。焊缝清理后,刀痕应均匀、光滑、平整。
6.2 窗的装配
6.2.1 应根据窗的抗风压强度、挠度计算结果(外窗抗风压强度计算方法参见附录D)确定增强型钢的
规格。当窗主型材构件长度大于450mm时,其内腔应加增强型钢。增强型钢的最小壁厚不应小于1.5mm,
应采用镀锌防腐处理,端头距型材端头内角距离不宜大于l5mm,且以不影响端头焊接为宜。增强型钢与
型材承载方向内腔配合间隙不应大于1mm。
6.2.2 用于固定每根增强型钢的紧固件不得少于三个,其间距不应大于300 mm,距型材端头内角距
离不应大于100mm。固定后的增强型钢不得松动。
6.2.3 外窗窗框、窗扇应有排水通道,使浸入框、扇内的水及时排至室外,排水通道不得与放置增
强型钢的腔室连通。
6.2.4 装配式结构的中梃联接部位应加衬联接件,该联接件与增强型钢应采用紧固件固定.联接处的四
周缝隙应有可靠密封措施。
6.2.5 窗框、窗扇外形尺寸的允许偏差见表2。

6.2.6 窗框、窗扇对角线尺寸之差不应大于3.0mm。
6.2.7 窗框、窗扇相邻构件装配间隙不应大于0.5 mm,相邻两构件焊接处的同一平面度不应大于0
.6 mm。
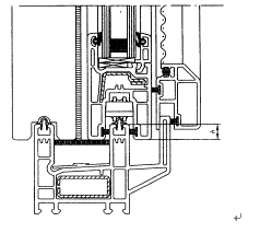
6.2.8 平开窗、上悬窗、平开下悬窗、下悬窗、中悬窗关闭时,窗框、窗扇四周的配合问隙c(见图l
、图2、图3),允许偏差为±1.0 mm。
6.2.9 平开窗、上悬窗、下悬窗、平开下悬窗、中悬窗窗扇与窗框搭接量b(见图l、图2、图3)的允
许偏差为±2 mm,平开窗、平开下悬窗装配时应有防下垂措施。左右推拉窗、上下推拉窗锁闭后的窗扇
与窗框搭接量b(见图4、图5)的允许偏差为±2 mm,且窗扇与窗框上下搭接量的实测b值(导轨顶部装滑轨
时,应减去滑轨高度)不应小于6mm。
6.2.10 五金配件安装位置应正确,数量应齐全,承受往复运动的配件在结构上应便于更换。五金配
件承载能力应与窗扇重量和抗风压要求相匹配。当平开窗窗扇高度大于900mm时,窗扇锁闭点不应少于两
个。五金配件与型材联接应满足物理性能和力学性能要求。摩擦铰链的联接螺钉应全部与框扇增强型钢
可靠联棒.

b——搭接量; c——配合间隙
图1 外平开窗、上悬窗

b——搭接量; c——配合间隙。
图2 内平开窗、平开下悬窗、下悬窗

b——搭接量; c——配合间隙。
图3 中悬窗

b——搭接量。
图4 推拉窗

b——搭接量; c——配合间隙。
图5 上下推拉窗
6.2.11 密封条、毛条等装配后应均匀、牢固,接口严密,无脱槽、收缩、虚压等现象。
6.2.12 压条装配后应牢固。压条角部对接处的间隙不应大于1 mm。不得在一边使用两根(含两根)以
上压条。
6.2.13 玻璃的装配应符合JGJ ll3的规定。当中空玻璃厚度尺寸超过24 mm时,应考虑相应的玻璃嵌
入深度、前部和后部余隙。
6.3 窗的性能
6.3.1 力学性能
平开窗、平开下悬窗、上悬窗、中悬窗、下悬窗的力学性能应符合表3要求,推拉窗的力学性能应符
合表4要求。
表3 平开窗、平开下悬窗、上悬窗、中悬窗、下悬窗的力学性能

表4 推拉窗的力学性能


6.3.2 物理性能
6.3.2.2抗风压性能
以安全检测压力值(P3)进行分级,其分级指标值P3按表5规定。
.gif)
6.3.2.2 气密性能
单位缝长空气渗透量q1和单位面积空气渗透量q2分级指标值按表6规定。

6.3.2.3 水密性能
分级指标值△p按表7规定。

6.3.2.4 保温性能
分级指标值K按表8规定。

6.3.2.5 空气声隔声性能
分级指标值Rw按表9规定。

6.3.2.6 采光性能
分级指标值Tr按表10规定。

试验方法
7.1 试件存放及试验环境
试验前窗试件应在18℃~28℃的条件下存放16 h以上,并在该条件下进行检测。
7.2 型材壁厚
用游标卡尺检测型材的壁厚。
7.3 外观质量检测
在自然光线下,距试样400㎜~500㎜目测外观项目。
7.4 窗的装配检测
7.4.1 用游标卡尺、卷尺、塞尺检测增强型钢及其装配质量。
7.4.2 用卷尺检测紧固件的装配质量。
7.4.3 目测窗框、窗扇排水通道。
7.4.4 目测装配式结构的中梃部位联接件的密封。
7.4.5 用精度为1㎜的量具测量窗框、窗扇外形尺寸及对角线。
7.4.6用塞尺检测窗框、窗扇相邻构件的装配间隙和窗框、窗扇的配合间隙。用精度为0.02㎜的量具
测量相邻构件同一平面度,用精度0.5㎜的量具检测窗框与窗扇四周搭接量。
7.4.7 目测五金配件的安装数量和装配质量。
7.4.8 目测密封封条、毛条的装配质量。
7.4.9 目测,并用塞尺检测压条的装配质量。
7.4.10 用游标卡尺和钢板尺检测玻璃的装配质量。
7.5 力学性能检测
7.5.1锁紧器(执手)的开关力检测:在锁紧器的手柄上,距其转动轴心100㎜处,挂一个0~150N的测力
弹簧秤,沿垂直手柄的运动方向以顺或逆时针方向加力,直到手柄移动使窗扇松开或紧闭,记录测量过
程中所显示的最大力即为该锁紧器的开力或关力。
7.5.2 开关力、悬端吊重、翘曲、开关疲劳、大力关闭、窗撑试验、弯曲、扭曲、开启限位装置按
GB/T 11793.3—1989规定的方法进行检测。
7.5.3 焊接角破坏力以所用型材生产厂提供的焊接角破坏力计算值为依据,对与该批门窗相同型材
、相同工艺制做的焊角样品按GB/T 8814—2004规定的可焊性试验方法进行检测,并查验相应生产过程中
的焊接角破坏力原始记录。焊接角最小破坏力的计算值应按附录E的方法计算。
7.6 物理性能检测
7.6.1 抗风压性能按GB/T 7106规定的方法检测,在各分级指标中,当外窗采用单层、夹层玻璃时,
其主要受力杆件相对挠度不应大于1/120;采用中空玻璃时,其主要受力杆件相对挠度不应大于1/180。
对于单扇固定窗,其最大允许挠度为矩形玻璃短边边长的1/60;当采用中空玻璃时,对于单扇平开窗,
取距锁点最远的窗扇自由角的位移值与该自由角至锁点距离之比为最大相对挠度值;当窗扇上有受力杆
件时,应同时测量该杆件的最大相对挠度,取两者中的不利者作为抗风压性能检测结果;无主要受力杆
件外开单扇平开窗只进行负压检测,无受力杆件内开单扇平开窗只进行正压检测。
7.6.2 气密性能、水密性能、保温性能、空气声隔声性能、采光性能分别按GB/T 7107、GB/T7108、
GB/T 8484、GB/T 8485、GB/T 11976规定的方法检测。
7.6.3 物理性能宜按气密性能、水密性能、抗风压性能的顺序试验。
检验规则
8 检验规则
产品检验分出厂检验和型式检验。
8.1 出厂检验
应在型式检验合格后的有效期内进行出厂检验。
8.1.1 出厂检验项目应符合表11的规定。不合格的产品不允许出厂。
8.1.2产品出厂前,抽样方法应按每一批次、品种、规格分别随机抽取5%且不得少于三樘。
.gif)
8.1.3 产品出厂检验判定规则根据表11规定的出厂检验项目进行检验。当其中某项不合格时,应加
倍抽样。对不合格的项目进行复检,如该项仍不合格,则判定该批产品为不合格。经检验,若全部检测项目符合本标准规定的合格指标,则判定该批产品为合格品。
8.1.4 塑料窗的物理性能和力学性能应符合订货合同中的要求。且不低于本标准规定的最低值。
8.2 型式检验
8.2.1 有下列情况之一时应进行型式检验:
a)新产品或老产品转厂生产的试制定型鉴定;
b)正式生产后,当结构、材料、工艺有较大改变而可能影响产品性能时;
c)正常生产时,每两年检测一次;
d)产品长期停产后,恢复生产时;
e)出厂检验结果与上次型式检验有较大差异时;
f)国家质量监督机构提出进行型式检验要求时。
8.2.2 型式检验项目见表11。
8.2.3批量生产时,抽样方法为每二年从出厂检测合格产品中随机抽取三樘进行型式检验。
8.2.4判定规则应根据表11规定的型式检验项目进行检验。当其中某项不合格时,应加倍抽样。对不合格的项目进行复检,如该项仍不合格,则判定该批产品为不合格品。经检验,若检验项目符合本标准规定的要求,则判定该批产品为合格品。标志、包装、运输、贮存
9 标志、包装、运输、贮存
9.1 标志
9.1.1 在产品的明显部位应注明产品标志,标志内容包括:
a)制造厂名称;
b)产品标记;
c)产品执行标准;
d)制造日期。
9.1.2 产品检验合格后应有合格证。合格证应符合GB/T 14436的规定。
9.2 包装
9.2.1 产品表面应有保护措施,宜用无腐蚀性的软质材料包装。
9.2.2 包装应牢固,并有防潮措施。
9.2.3 产品出厂时应附有产品清单及产品检验合格证。
9.3 运输
9.3.1 装运产品的运输工具,应有防雨措施并保持清洁。
9.3.2 在运输、装卸时,应保证产品不变形、不损伤、表面完好。
9.4 贮存
9.4.1 产品应放置在通风、防雨、干燥、清洁、平整的地方。严禁与腐蚀性物质接触。
9.4.2 产品贮存环境温度应低于50℃,距离热源应不小于1 m。
9.4.3 产品不宜直接接触地面,底部宜垫高不小于50㎜。产品宜立放,立放角应不小于70°,并有防倾倒措施。










